Мы используем куки-файлы. Соглашение об использовании
Аукцион
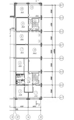
Площадь4 273,3 м²
Этажность3
Код лота: РАД-432215. Реализуется на торгах. Продаётся* современный офисно-складской комплекс общей площадью 4 273, 3 кв. м на земельных участках площадью 24 842 кв. м в черте города Петропавловск-Камчатский. В составе комплекса находится крупная площадка для обслуживания большегрузного автотранспорта, а развитая собственная инфраструктура делает Объект абсолютно автономным. Здание было полностью реконструировано в 2019 году, его сейсмоустойчивость выросла до 9 баллов. Здание оборудовано современными инженерными системами: автоматизация склада (WMS), IT-инфраструктура, видеонаблюдение, пожарная сигнализация и автоматическое пожаротушение. На территории собственная дизельная котельная с возможностью перехода на газ, резервуар воды для пожаротушения на 1 000 куб. м. Современная система безопасности: огороженная и освещённая территорию; центральный пост охраны; электронные замки; видеонаблюдение; противопожарная система. Инвестиционная привлекательность Готовая к эксплуатации инфраструктура позволяет быстро запускать бизнес-процессы без дополнительных затрат на строительство и подключение коммуникаций. Наличие большой автостоянки и вспомогательных зданий расширяет доходный потенциал и увеличивает круг потенциальных арендаторов и клиентов. Высокий потенциал роста доходности гарантирует сдачу в аренду офисных и складских помещений по рыночным ставкам. В перспективе организация дополнительных сервисов (таких как мойка, ремонт, хранение техники, контейнерные площадки и пр. ). Высокая сейсмостойкость и современные системы безопасности обеспечивают надёжность эксплуатации. Обширная территория и развитая инженерная инфраструктура позволяют расширять бизнес, возводить дополнительные объекты и увеличивать доходность, что повышает общую стоимость Объекта. Большая гибкость использования подходит для размещения регионального логистического центра, филиала крупной компании, сервисного или производственного предприятия, оптовой торговли, дистрибуции, разделения на офисные и складские площади, строительства дополнительных объектов или организации открытого хранения. https://catalog. lot-online. ru/index. php?dispatch=products. view&product_id=1466751
АукционОбъект реализуется посредством электронных торгов. Конечную информацию об оплате, дополнительных платежах и условия заключения договора смотрите в документах извещения к лоту, на сайте электронной торговой площадки.
lock

Войдите или зарегистрируйтесь
для просмотра информации

Просматривайте условия сделки и всю информацию об объекте
Сохраняйте фильтры в поиске и не вводите заново
Доступ к избранному с любого устройства
Неограниченное добавление в избранное
  • Инфраструктура
  • Похожие рядом
Помощь надёжных риелторов
Риелтор партнёр Циан поможет купить или продать любую недвижимость
Начальная цена, аукцион
300 000 000 ₽
3 942 508 $
3 382 081
Цена за метр
70 204 ₽
Налог
НДС не включен
Агентство недвижимости
Документы проверены